
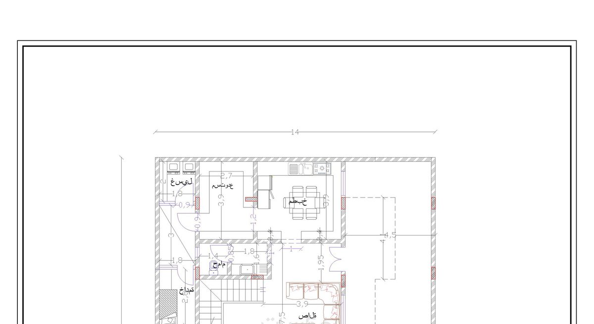
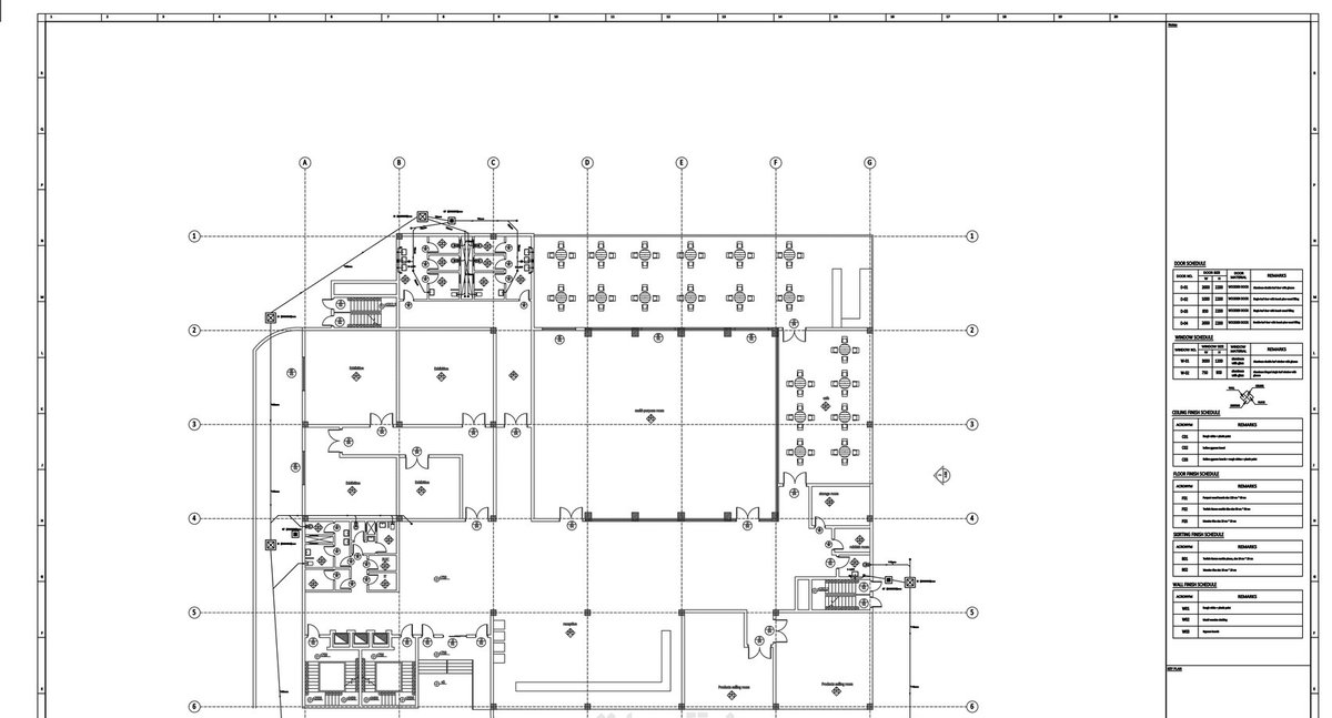
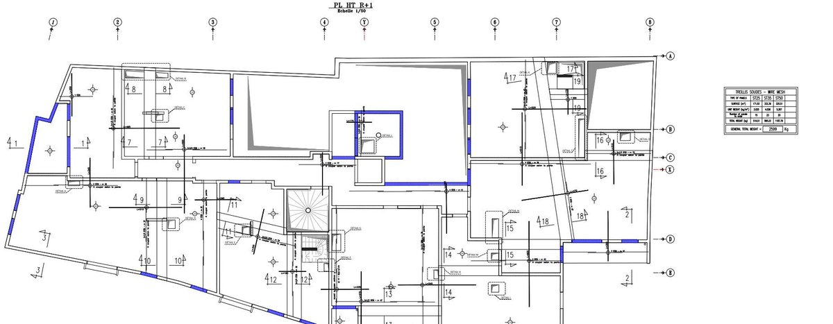
اوتوكاد - ريندر - ريفيت - فوتوشوب 🇸🇦🇰🇼🇶🇦🇦🇪
@design4052
مهندسين لخدمة طلاب العمارة والتصميم الداخلي في حل الواجبات والمشاريع
#اوتوكاد #اسكتش_اب #ريفيت #فوتوشوب #رندر #لاند_سكيب #تصميم_داخلي
0568148831
ID: 1730674085670072320
01-12-2023 19:44:06
440 Tweet
71 Takipçi
229 Takip Edilen

















