مخططات فلل (@al1000a) 's Twitter Profile
مخططات فلل

@al1000a

💥 حساب مهتم بنشر التصاميم المعمارية 🏘 #مخططات_فلل I instagram.com/AL1000AX

ID: 3431090654

linkhttps://t.me/AL1000A calendar_today03-09-2015 00:03:55

9,9K Tweet

173,173K Takipçi

84 Takip Edilen

مخططات فلل (@al1000a) 's Twitter Profile Photo

🚨🚨🚨🚨🚨🚨🚨🚨🚨 #مخططات_فلل #مراجعة_تصاميم_المتابعين السلام عليكم ياليت تنزلون المخطط وتشوفون آراء المتابعين هل يحتاج تعديل أو فيه ملاحظات مفيدة، الله يعطيكم العافية 🏠 فيلا سكنية 🏠 أطوال الأرض 25x20 🏠 الموقع: 🇸🇦

🚨🚨🚨🚨🚨🚨🚨🚨🚨

#مخططات_فلل
#مراجعة_تصاميم_المتابعين
السلام عليكم 
ياليت تنزلون المخطط وتشوفون آراء المتابعين
هل يحتاج تعديل أو فيه ملاحظات مفيدة، الله يعطيكم العافية

🏠 فيلا سكنية
🏠 أطوال الأرض 25x20
🏠 الموقع: 🇸🇦
مخططات فلل (@al1000a) 's Twitter Profile Photo

🚨🚨🚨🚨🚨🚨🚨🚨🚨 #مخططات_فلل #مراجعة_تصاميم_المتابعين السلام عليكم استاذي انا بادي على بناء وليس لدي الخبره ارضي مساحتها ٣٣٦ ١٤*٢٤ اذا امكن تعرضها على متابعينك خطتي : عماره مكونه من بدروم و ارضي و اول و ثاني انا اخذ الاول و الثاني والارضي و البدروم استثمار الموقع: 🇸🇦

🚨🚨🚨🚨🚨🚨🚨🚨🚨

#مخططات_فلل
#مراجعة_تصاميم_المتابعين
السلام عليكم
استاذي انا بادي على بناء وليس لدي الخبره 
ارضي مساحتها ٣٣٦
١٤*٢٤ 
اذا امكن تعرضها على متابعينك 
خطتي : عماره مكونه من بدروم و ارضي و اول و ثاني 
انا اخذ الاول و الثاني 
والارضي و البدروم استثمار 
الموقع: 🇸🇦
مخططات فلل (@al1000a) 's Twitter Profile Photo

🚨🚨🚨🚨🚨🚨🚨🚨🚨 #مخططات_فلل #مراجعة_تصاميم_المتابعين السلام عليكم ياليت تتفضلون مشكورين وتعرضون المخطط الخاص فيني وأتمنى أسمع ملاحظات المتابعين واقتراحاتهم المفيدة 🏠 فيلا سكنية 🏠 أطوال الأرض: 30x12.5 🏠 شارعين متظاهرين: شرقي + ممر غربي 🏠 الموقع: 🇸🇦

🚨🚨🚨🚨🚨🚨🚨🚨🚨

#مخططات_فلل
#مراجعة_تصاميم_المتابعين
السلام عليكم 
ياليت تتفضلون مشكورين وتعرضون المخطط الخاص فيني
وأتمنى أسمع ملاحظات المتابعين واقتراحاتهم المفيدة

🏠 فيلا سكنية
🏠 أطوال الأرض: 30x12.5
🏠 شارعين متظاهرين: شرقي + ممر غربي
🏠 الموقع: 🇸🇦
مخططات فلل (@al1000a) 's Twitter Profile Photo

🚨🚨🚨🚨🚨🚨🚨🚨🚨 #مخططات_فلل #مراجعة_تصاميم_المتابعين السلام عليكم بالله نزلوا المخطط للمتابعين يعطوني آرائهم، أفكارهم، اقتراحاتهم، وأي تعديلات أو انتقادات بنّاءة الله يجزاكم خير 🏠 دور أرضي فقط (مؤسس شقق) 🏠 مساحة البناء: 707م² 🏠الواجهة على شارع 🏠 الموقع: 🇸🇦

🚨🚨🚨🚨🚨🚨🚨🚨🚨

#مخططات_فلل
#مراجعة_تصاميم_المتابعين
السلام عليكم
بالله نزلوا المخطط للمتابعين 
يعطوني آرائهم، أفكارهم، اقتراحاتهم، وأي تعديلات أو انتقادات بنّاءة
الله يجزاكم خير

🏠 دور أرضي فقط (مؤسس شقق)
🏠 مساحة البناء: 707م²
🏠الواجهة على شارع
🏠 الموقع: 🇸🇦
مخططات فلل (@al1000a) 's Twitter Profile Photo

🚨🚨🚨🚨🚨🚨🚨🚨🚨 #مخططات_فلل #مراجعة_تصاميم_المتابعين السلام عليكم أبي أطرح عليكم هذا المخطط وأتمنى أسمع رأي المتابعين وملاحظاتهم قبل التنفيذ، الله يعطيكم العافية 🏠 فيلا 🏠 أطوال الأرض: 25x19 🏠 الموقع: 🇸🇦

🚨🚨🚨🚨🚨🚨🚨🚨🚨

#مخططات_فلل
#مراجعة_تصاميم_المتابعين
السلام عليكم
أبي أطرح عليكم هذا المخطط 
وأتمنى أسمع رأي المتابعين وملاحظاتهم قبل التنفيذ، الله يعطيكم العافية

🏠 فيلا 
🏠 أطوال الأرض: 25x19
🏠 الموقع: 🇸🇦
مخططات فلل (@al1000a) 's Twitter Profile Photo

🚨🚨🚨🚨🚨🚨🚨🚨🚨 #مخططات_فلل #مراجعة_تصاميم_المتابعين السلام عليكم أعرض عليكم هذا المخطط وأتمنى أسمع آراءكم وملاحظاتكم عليه الله يعطيكم العافية 🙏🏻 🏠 فيلا سكنية 🏠 أطوال الأرض: 25x25 🏠 شارعين: شرقي + جنوبي (عرض كل شارع 20م) 🏠 الموقع: 🇸🇦

🚨🚨🚨🚨🚨🚨🚨🚨🚨

#مخططات_فلل
#مراجعة_تصاميم_المتابعين
السلام عليكم 
أعرض عليكم هذا المخطط وأتمنى أسمع آراءكم وملاحظاتكم عليه الله يعطيكم العافية 🙏🏻

🏠 فيلا سكنية
🏠 أطوال الأرض: 25x25
🏠 شارعين: شرقي + جنوبي (عرض كل شارع 20م)
🏠 الموقع: 🇸🇦
م/عادل | أساس الديار (@arch_adeel) 's Twitter Profile Photo

أحدث أعمالي مخططات فيلا 20*20 = 400 م2 تتميز الفيلا بوجود كافة فراغات المسكن السعودي مع حديقة أمامية أشبه بالفناء تطل عليه معظم الفراغات . تم تصميم الواجهة بفكرة مميزة حيث تكون القواطع عنصر جمالي وتعطي الحديقة خصوصية أكبر .الصورة مثال مشابه لفكرة القواطع . #اساس_الديار

أحدث أعمالي مخططات فيلا 20*20 = 400 م2 
تتميز الفيلا بوجود كافة فراغات المسكن السعودي مع حديقة أمامية أشبه بالفناء تطل عليه معظم الفراغات .

تم تصميم الواجهة بفكرة مميزة حيث تكون القواطع عنصر جمالي وتعطي الحديقة خصوصية أكبر .الصورة مثال مشابه لفكرة القواطع .
#اساس_الديار
ARCH | ALTAMIMI واجهات (@eng_altamimi2) 's Twitter Profile Photo

تصميمنا لواجهات مشروع تجاري بمدينة الرياض، التصميم بالطابع المعماري الكلاسيكي

تصميمنا لواجهات مشروع تجاري
بمدينة الرياض، التصميم بالطابع المعماري الكلاسيكي
مخططات فلل (@al1000a) 's Twitter Profile Photo

🚨🚨🚨🚨🚨🚨🚨🚨🚨 #مخططات_فلل #مراجعة_تصاميم_المتابعين السلام عليكم ممكن تعرضون لي المخطط قبل الاعتماد النهائي وأتمنى أسمع ملاحظات وآراء المتابعين، الله يعطيكم العافية 🙏🏻 🏠 فيلا سكنية 🏠 أطوال الأرض: 22.5x15 🏠 واجهة جنوبية – شارع 15 🏠 الموقع: 🇸🇦

🚨🚨🚨🚨🚨🚨🚨🚨🚨

#مخططات_فلل
#مراجعة_تصاميم_المتابعين
السلام عليكم 
ممكن تعرضون لي المخطط قبل الاعتماد النهائي
وأتمنى أسمع ملاحظات وآراء المتابعين، الله يعطيكم العافية 🙏🏻

🏠 فيلا سكنية
🏠 أطوال الأرض: 22.5x15
🏠 واجهة جنوبية – شارع 15
🏠 الموقع: 🇸🇦
مخططات فلل (@al1000a) 's Twitter Profile Photo

🚨🚨🚨🚨🚨🚨🚨🚨🚨 طلب من الخاص …. #مخططات_فلل #مراجعة_تصاميم_المتابعين السلام عليكم ممكن أحصل عندكم مخطط لمسجد صغير؟ 🕌المساحة تقريباً 380م 🕌مساحة المسجد: 12 × 6 م 🕌مصلى النساء: 4 × 8 م وحتسبوا الأجر لي ولكم ولكل من صلى فيه من المسلمين الله يكتب أجركم ويبارك في عملكم

🚨🚨🚨🚨🚨🚨🚨🚨🚨

طلب من الخاص ….

#مخططات_فلل
#مراجعة_تصاميم_المتابعين
السلام عليكم 
ممكن أحصل عندكم مخطط لمسجد صغير؟

🕌المساحة تقريباً 380م
🕌مساحة المسجد: 12 × 6 م
🕌مصلى النساء: 4 × 8 م

وحتسبوا الأجر لي ولكم ولكل من صلى فيه من المسلمين
الله يكتب أجركم ويبارك في عملكم
مخططات فلل (@al1000a) 's Twitter Profile Photo

🚨🚨🚨🚨🚨🚨🚨🚨🚨 #مخططات_فلل #مراجعة_تصاميم_المتابعين السلام عليكم ممكن تعرضون لي هذا المخطط وأتمنى أسمع ملاحظات وآراء المتابعين الكرام، الله يجزاكم خير 🙏🏻 🏠 فيلا سكنية 🏠 مساحة البناء: 260م² (دور أرضي) 🏠 أطوال الأرض: تقريبًا 23x17 🏠 الواجهة: شارع جنوبي 15م 🏠 الموقع: 🇸🇦

🚨🚨🚨🚨🚨🚨🚨🚨🚨

#مخططات_فلل
#مراجعة_تصاميم_المتابعين
السلام عليكم
ممكن تعرضون لي هذا المخطط 
وأتمنى أسمع ملاحظات وآراء المتابعين الكرام، الله يجزاكم خير 🙏🏻

🏠 فيلا سكنية
🏠 مساحة البناء: 260م² (دور أرضي)
🏠 أطوال الأرض: تقريبًا 23x17
🏠 الواجهة: شارع جنوبي 15م
🏠 الموقع: 🇸🇦
مخططات فلل (@al1000a) 's Twitter Profile Photo

🚨🚨🚨🚨🚨🚨🚨🚨🚨 #مخططات_فلل #مراجعة_تصاميم_المتابعين السلام عليكم ممكن رأيكم ورأي المتابعين في هذا المخطط وأرحب بأي ملاحظات أو اقتراحات تفيد التصميم الله يعطيكم العافية 🙏🏻 🏠 فيلا سكنية 🏠 أطوال الأرض: 35x21 🏠 واجهة واحدة – شارع 25م 🏠 الموقع: 🇸🇦

🚨🚨🚨🚨🚨🚨🚨🚨🚨

#مخططات_فلل
#مراجعة_تصاميم_المتابعين
السلام عليكم 
ممكن رأيكم ورأي المتابعين في هذا المخطط 
وأرحب بأي ملاحظات أو اقتراحات تفيد التصميم
الله يعطيكم العافية 🙏🏻

🏠 فيلا سكنية
🏠 أطوال الأرض: 35x21
🏠 واجهة واحدة – شارع 25م
🏠 الموقع: 🇸🇦
مخططات فلل (@al1000a) 's Twitter Profile Photo

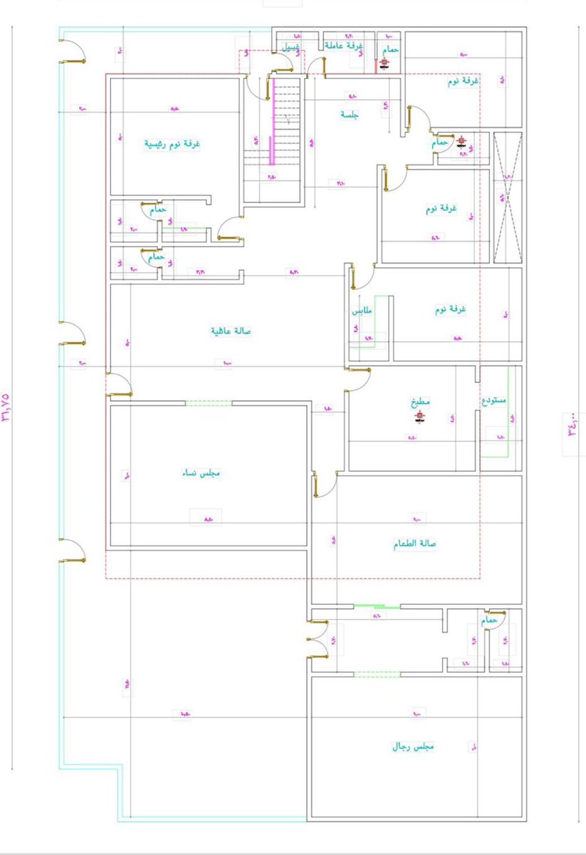
🚨🚨🚨🚨🚨🚨🚨🚨🚨 #مخططات_فلل #مراجعة_تصاميم_المتابعين السلام عليكم ممكن تنشرون هذا المخطط، وأتمنى من المتابعين ملاحظاتهم حول الأخطاء أو النقاط اللي تحتاج تعديل الله يجزاكم خير 🙏🏻 🏠 فيلا سكنية 🏠 أطوال الأرض: 32x24 🏠 الموقع: 🇸🇦

🚨🚨🚨🚨🚨🚨🚨🚨🚨

#مخططات_فلل
#مراجعة_تصاميم_المتابعين
السلام عليكم 
ممكن تنشرون هذا المخطط، وأتمنى من المتابعين ملاحظاتهم حول الأخطاء أو النقاط اللي تحتاج تعديل
الله يجزاكم خير 🙏🏻

🏠 فيلا سكنية
🏠 أطوال الأرض: 32x24
🏠 الموقع: 🇸🇦
مخططات فلل (@al1000a) 's Twitter Profile Photo

🚨🚨🚨🚨🚨🚨🚨🚨🚨 #مخططات_فلل #مراجعة_تصاميم_المتابعين السلام عليكم ممكن تعرضون هذا المخطط على المتابعين البناء: فيلا + شقة + ملحق (الملحق لم يُستكمل بعد) 🏠 فيلا سكنية 🏠 أطوال الأرض – 25م على الشارع الشمالي شارع 20م – 18م على الشارع الغربي شارع 20م 🏠 الموقع: الرياض 🇸🇦

🚨🚨🚨🚨🚨🚨🚨🚨🚨
#مخططات_فلل
#مراجعة_تصاميم_المتابعين
السلام عليكم
ممكن تعرضون هذا المخطط على المتابعين 
البناء: فيلا + شقة + ملحق (الملحق لم يُستكمل بعد)

🏠 فيلا سكنية
🏠 أطوال الأرض 
– 25م على الشارع الشمالي شارع 20م
– 18م على الشارع الغربي شارع 20م
🏠 الموقع: الرياض 🇸🇦
مخططات فلل (@al1000a) 's Twitter Profile Photo

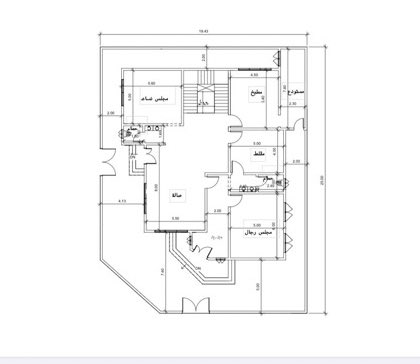
🚨🚨🚨🚨🚨🚨🚨🚨🚨 #مخططات_فلل #مراجعة_تصاميم_المتابعين السلام عليكم ياليت تسألون متابعينكم عن موقع باب المجلس هل هو مناسب في المخطط؟ أو فيه مكان أفضل من ناحية الاستخدام والخصوصية؟ أنتظر آراءكم وملاحظاتكم 🙏🏻 🏠 فيلا سكنية 🏠 الموقع: 🇸🇦

🚨🚨🚨🚨🚨🚨🚨🚨🚨

#مخططات_فلل
#مراجعة_تصاميم_المتابعين
السلام عليكم 
ياليت تسألون متابعينكم عن موقع باب المجلس
هل هو مناسب في المخطط؟ أو فيه مكان أفضل من ناحية الاستخدام والخصوصية؟
أنتظر آراءكم وملاحظاتكم 🙏🏻

🏠 فيلا سكنية
🏠 الموقع: 🇸🇦
مخططات فلل (@al1000a) 's Twitter Profile Photo

🚨🚨🚨🚨🚨🚨🚨🚨🚨 #مخططات_فلل #مراجعة_تصاميم_المتابعين السلام عليكم أحتاج رأي المتابعين في مخطط الفيلا النهائي بارك الله فيكم وتقبل الله طاعتكم 🙏🏻 🏠مساحة الأرض: 12x25 🏠على شارع عرض 25م 🏠الواجهة: شرقية 🏠الموقع: 🇸🇦

🚨🚨🚨🚨🚨🚨🚨🚨🚨

#مخططات_فلل
#مراجعة_تصاميم_المتابعين
السلام عليكم 
أحتاج رأي المتابعين في مخطط الفيلا النهائي
بارك الله فيكم وتقبل الله طاعتكم 🙏🏻

🏠مساحة الأرض: 12x25
🏠على شارع عرض 25م
🏠الواجهة: شرقية
🏠الموقع: 🇸🇦